Un bain à coupoles dans une demeure algéroise de l’époque ottomane

Nadjiba DRIOUECHE DJAALALI (Auteur)
83 – 92
Le Hammam en Méditerranée
N° 63-64 — Vol. 18 — 30/06/2014

Introduction

La médina ottomane d’Alger recèle en son sein de très beaux et grands palais situés au cœur de la ville, regroupant le centre économique, religieux et administratif d'El-Djezaïr. Ces demeures se concentraient plus particulièrement dans le quartier de la Marine. Répertoriées par A. Devoulx au début XIXe siècle en vingt-six (26) palais[1], la majorité d’entre elles furent détruites au début de la période coloniale.

L’importance de ces palais, ainsi que le rang social de leur propriétaire a nécessité l’introduction d’un espace important dans ces habitations, le bain « hammam ». « Il faut relever la présence systématique dans ces demeures, de bains privés, ce qui explique l’absence de bains publics dans cette partie de la ville -quartier de la Marine- »[2].

Pour l’étude des bains privés, notre choix s’est porté sur un somptueux palais appelé Dar Aziza Bey[3], implanté dans un lieu stratégique, le quartier du palais « Djénina » (Fig. 1), au niveau de l’actuelle place des Martyrs d’Alger. Ce palais fut construit entre 1666 et 1672 par Redjeb Bey de Constantine pour son épouse Aziza, fille du Cayad Ahmed ben Ramdan[4]. Après le départ de ce Bey, cette demeure fut appelée « Dar Diaf », et a servi comme annexe du Palais royal. Elle accueille aujourd’hui l’Agence nationale de gestion et d’exploitation des biens culturels protégés.

Le hammam de Dar Aziza Bey 

L’étude architecturale de ce monument révèle, au centre de la demeure, un grand patio entouré d’une galerie à arcades se développant sur deux niveaux. Cet espace central est entouré par quatre ailes dont l’une est très caractéristique, il s’agit de l’aile sud-est (Fig. 2) présentant des espaces en demi-niveau et regroupant au rez-de-chaussée les pièces humides : la cuisine, la buanderie et le bain du palais.

Ils représentent des espaces très altérés par les transformations datant de la période coloniale. Les travaux de restauration, entrepris par l’Agence Nationale d’Archéologie en 1999, ont visé essentiellement la restitution du bain de l’époque ottomane. Ce qui nous a permis d’assister aux fouilles archéologiques et de définir les caractéristiques du bain de l’époque ottomane.

Fig. 1 : Situation du palais Dar Aziza Bey

  

 Source : H. KLEIN, Feuillets d’El-Djezaïr.

Fig. 2 : L’aile sud-est regroupant des espaces derrière le palais Djénina en demi-niveau

Source : H. KLEIN, Feuillets d’El-Djezaïr.

L’accès au bain se faisait par le biais d’un espace intermédiaire « la skiffa » accessible directement à partir de la galerie du patio. La porte est rehaussée d’un cadre en marbre richement sculpté en demi-relief dessinant un arc en plein centre. La skiffa donne accès également à des latrines contigües au bain. Ce dernier était constitué de deux espaces importants séparés par une arcade : la chambre tiède « Bit al-wasta » et la chambre chaude « Bit al-skhuna » représentant l’étuve, la pièce principale du hammam.

La chambre chaude du bain 

Celle-ci était de forme carrée de 2.43m de côté, recouverte par une coupole octogonale à huit pans[5]. Cette qubba[6] était posée sur quatre (04) pendentifs (Fig. 3) dont un seul est resté intact, les trois autres, affectés par les transformations, ont perdu leurs structures d’origine. Cette coupole est noyée dans le plancher comme celles qui marquent les angles de la galerie supérieure.

Fig. 3 : Chambre chaude du bain, « Bit al-skhuna », au cours des fouilles archéologiques.

 Source : auteur, 1999.

La coupole est décorée avec des carreaux de faïences qui couvraient autrefois les murs qui la supportent. Les traces de ces carreaux ont été retrouvées lors des décapages des enduits de ses murs. Les fouilles archéologiques au niveau du hammam ont permis de découvrir l’existence d’une couche importante de remblais d’environ 55 cm au-dessus du niveau originel (Fig. 4) sous laquelle a été retrouvé l’ancien niveau du bain datant de l’époque ottomane. La photographie ci-dessous (fig. 4) montre en arrière-plan la voûte qui constitue le plancher de Bit al-skhuna ainsi que les bassins d’eau mentionnés par A. Ravoisier en 1846[7] (Fig. 5). Cette photographie laisse apparaître les pans de la coupole et le pendentif angulaire. Au fond, on aperçoit la chambre tiède.

Fig. 4 : Le plancher originel de la chambre tiède du bain, au fond la voûte de la chambre chaude.

Source : auteur, 1999.

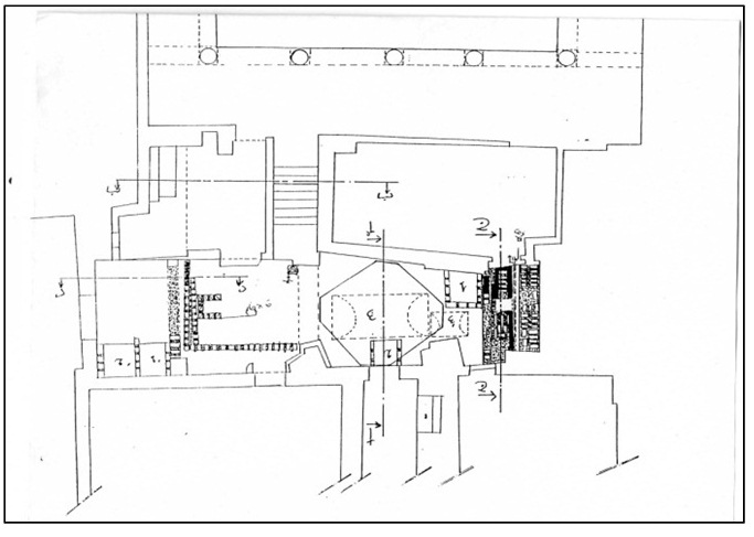
Fig. 5 : Plan de Dar Aziza Bey avant les transformations, indiquant les espaces d’eau, l’ancienne annexe « douira » du palais ainsi que la rue et la voûte qui le séparait de la Djénina

Source : A. Ravoisié.

Ces découvertes archéologiques ont permis de restituer facilement l’espace principal du bain « la chambre chaude » (Fig. 6). Recouverte d’une coupole octogonale à huit pans sur pendentif, au fond de laquelle se dressent les deux bassins d’eau ; les murs recevaient un revêtement en carreaux de faïence. Cette pièce était autrefois chauffée par un four « furnaq »[8] se situant au sous-sol ; l’alimentation en eau se faisait par un puits « djab » situé également dans ce même niveau.

Fig. 6 : Relevé archéologique du bain du palais Aziza Bey. Identifiant la voûte en berceau dans la chambre chaude ainsi que des bassins d’eau.

Source : Agence Nationale d’Archéologie, étude archéologique de l’aile sud-est de Dar Aziza, mars 2000.

La chambre tiède du bain 

Le second espace de ce bain représenté par « Bit al-wasta » matérialise en plan une forme rectangulaire (4,60 m x 2,83 m)[9]. Cette pièce est un espace intermédiaire sans dispositif de chauffage, mais à l’atmosphère cependant tiédie par sa mitoyenneté à la salle chaude.

Les fouilles ont permis de retrouver l’alcôve « qbu » du fond, définie clairement sur le plan de A. Ravoisié. Ce « qbu » est soutenu sur une partie par des rondins en bois, l’autre partie reposant sur une voûte du sous-sol (Fig. 7). Il a été découvert aussi deux bacs maçonnés par deux rangées de briques pleines en bordure du mur sud-est de cet espace.

Fig. 7 : L’alcôve découverte dans la chambre tiède du bain. La structure de cette alcôve correspond au relevé réalisé par A. Ravoisié en 1846.

Source : auteur, 1999.

A la limite de l’alcôve, a été retrouvé l’ancien dallage de cette chambre tiède sous 28 cm de remblais. Ce dallage offre une composition en carreaux de faïence avec des motifs floraux sur la bordure et le cœur tandis que la partie intermédiaire est formée de carreaux de faïence noirs et blancs (Fig. 7 et Fig. 4).

Des marches recouvertes en schiste ont également été retrouvées sous cette masse de terre. Les bordures inférieures des murs sont entourées de deux niveaux de faïences de 10 cm de côtés formant des plinthes. A l’encoignure de cette pièce a été découverte une évacuation en terre cuite d’origine ottomane.

Les murs de cette chambre tiède sont composés de plusieurs matériaux : des briques pleines anciennes rouges et blanches, des briques creuses, de la chaux, du ciment[10]. Des traces de pendentifs sont encore apparentes sur les parties supérieures des murs. Ces pendentifs devaient supporter une coupole disparue qui recouvrait la chambre tiède.

Conclusion 

Les différentes fouilles archéologiques effectuées dans le palais Aziza Bey ont permis de restituer la structure originelle du bain dans cette demeure citadine du XVIIe siècle. Il faut noter qu’une étude comparative avec d’autres bains privés permet de définir des caractéristiques communes, avec certaines variantes liées surtout à l’importance de la demeure.

Le hammam est regroupé avec les autres espaces d’eau, définissant en général une aile à part dans l’édifice. Il est situé à un niveau supérieur pour la réalisation du système hypocauste dans le plancher et assurer ainsi une alimentation en eau à partir d’un puits situé dans le sous-sol. Le bain est précédé d’une skiffa assurant l’intimité de l’ensemble. Elle donne accès à la salle tiède puis la salle chaude ; celle-ci recouverte d’une coupole percée souvent de petites ouvertures étoilées ou en cercle « Lamdawi »[11] assurant l’éclairage de la pièce et son confort thermique[12].

Concernant leur décoration, les espaces du hammam étant tous très humides, leurs murs sont couverts de carreaux de faïences, de différents motifs. Le sol est aussi revêtu de carreaux de céramiques créant des compositions particulières. Ces carreaux provenaient de différents pays, parfois de Tunisie : ce sont des carreaux à dominante verte, bleue et violette… Beaucoup étaient importés d’Italie : ils se reconnaissaient à leur décor d’échelle plus grande qu’éclaire un jaune d’or. L’Espagne est assez abondamment représentée dans quelque unes de ces faïences où figure le reflet métallique. Un grand nombre de carreaux sort des fabriques de Delft[13].

Nous pouvons conclure que les fouilles entreprises dans le palais Aziza Bey représentent une étape très importante pour l’étude des bains privés dans la médina d’El-Djezaïr. Elle permet de restituer la structure  du hammam de l’époque ottomane, révélant de ce fait ses richesses architecturales, architectoniques et ornementales.

La reconversion de la majorité de ces édifices de la médina en siège de bureaux administratifs ou en espaces d’exposition temporaire[14] fait que leurs bains ne fonctionnent plus en tant que tel. Le musée du Bardo est le seul à avoir exploité le bain comme espace d’exposition permanente. Le hammam a reçu tout le mobilier adéquat de l’époque, reproduisant d’anciennes pratiques et coutumes, le valorisant davantage.

Bibliographie 

Alloula, M. (2001), Alger photographiée au XIXème siècle, Italie, Musumeci, p. 173. (Alloula, M., Alger photographiée, 2001).

Cherif-Seffadj, N. Les bains algériens pendant la période musulmane, Origines et filiations, t. 1, mémoire de magister (non publié), Alger, EPAU, 1996.

Cherif-Seffadj, N, (2008), Les bains d’Alger durant la période ottomane, (XVIe-XIXe siècle), Paris, PUPS.

Cresti, F. (1993), Contribution à l'histoire d'Alger, Rome, CASP.

Cresti, F. (1996), Alger au XVIIe siècle, Rome, CASP.

Drioueche-Djaalali, N.-K, (2001), Contribution à l’enrichissement de l’architecture palatine, Dar Aziza Bey mémoire de la Djénina d’Alger, mémoire de magister (non publié), Alger, EPAU.

Drioueche-Djaalali, N.-K, (2011), « Coupoles de la Casbah d’El-Djezaïr », in Revue électronique Mujtamâa wa Umrân, n° 33, septembre 2011, p. 15-33.

Golvin, L. (2003), Palais et demeures d’Alger à la période ottomane, Alger, éd., INAS.

Hocine, M. (2006), La réutilisation des monuments historiques : contraintes et perspectives, mémoire de Magister (non publié), Alger, EPAU.

Khelifa, A. (2010), Alger, Histoire et patrimoine, Alger, ANEP.

Klein, H. (1910), « Le vieil Alger et l'occupation militaire française », in Feuillets d'El-Djezaïr, Alger.

Marcais, G. (1954), L’Architecture musulmane d’Occident, Tunisie, Algérie, Maroc, Espagne, Sicile, Paris, GGA, éd., Arts et métiers graphiques.

Ravoisié, A. (1846), Exploration scientifique de l’Algérie pendant les années 1840, 1841,1842, t. 2, Paris, Librairie de Firmin Didot.

Rozet, M. (1833), Voyage dans la Régence d'Alger, ou description du pays occupé par l'armée française en Afrique, t. 2 et t. 3, Paris, Arthus Bertrand.

Shuval, T. (1998), La ville d'Alger vers la fin du XVIIIe siècle, population et cadre urbain, Paris, éd., CNRS.

Vayssettes, M.-E, (1868), L’Histoire de Constantine sous la domination turque, deuxième période de 1647 à 1792, Recueil des notices et mémoires de la société archéologique de la province de Constantine, Alger, éd., Bastide.


 Notes

[1] Seffadj, N.-C (2008), Les bains d’Alger durant la période ottomane, (XVIe-XIXe siècle), Paris, PUPS, p. 255.

[2] Ibid., p. 255.

[3] Le palais Aziza Bey fut classé monument historique dès 1887.

[4].Vayssettes, M.-E, (1868), Histoire de Constantine sous la domination turque, R.S.A.C., Alger, n°12, éd. Bastide, p. 266-267.

[5] Cette forme de coupole octogonale est spécifique aux couvertures maçonnées dans la ville d’Alger ottomane.

[6] La coupole est appelée en arabe qubba.

[7] Relevé de Dar Aziza, Ravoisié, A. (1846), Exploration scientifique de l’Algérie pendant les années 1840, 1841, 1842, t. 2, Paris, Librairie de Firmin Didot Frères.

[8] Golvin, L. (2003), Palais et demeures d’Alger à la période ottomane, Alger, éd. INAS, p. 33.

[9] Drioueche-Djaalali, N.-K, (2001), Contribution à l’enrichissement de l’architecture palatine, Dar Aziza Bey mémoire de la Djénina d’Alger, mémoire de magister non publié, Alger, EPAU, p. 179.

[10] Ce palais fut affecté par des transformations suite à différentes occupations depuis son édification. Il a servi d’hôtel des ambassadeurs durant l’époque ottomane, de résidence d’officiers français dès 1830, de siège de l’archevêché à partir de 1838 et de musée à partir du XXe siècle.

[11] Cherif-Seffadj, N. (1996), Les bains algériens pendant la période musulmane, Origines et filiations, t. 1, mémoire de magister (non publié), Alger, EPAU, p. 84.

[12] La forme curviligne de la coupole permet aux gouttelettes d’eau de condenser et de s’écouler le long de la courbe.

[13] Marcais, G, (1954), L’Architecture musulmane d’Occident, Tunisie, Algérie, Maroc, Espagne, Sicile, Paris, GGA, éd. Arts et métiers graphiques, p. 449.

[14] Depuis l’indépendance à nos jours, les palais d’Alger ont connu plusieurs affectations. Aucune réutilisation, fondée sur une étude exhaustive en rapport avec les valeurs historique, culturels et d’usage n’a été entamée à nos jours ; Hocine, M. (2006), La réutilisation des monuments historiques : contraintes et perspectives, mémoire de Magister (non publié), Alger, EPAU.

Citer cet article

DRIOUECHE DJAALALI, N. (2014). Un bain à coupoles dans une demeure algéroise de l’époque ottomane. Insaniyat - Revue algérienne d'Anthropologie et de Sciences Sociales, 18(63-64), 83–92. https://insaniyat.crasc.dz/fr/article/un-bain-a-coupoles-dans-une-demeure-algeroise-de-lepoque-ottomane